
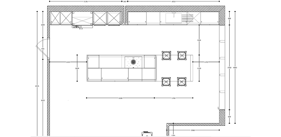
Brief: This brief from this client was to design a kitchen for a bungalow in Leigh On Sea, Essex. The space originally comprised of a kitchen and dining space divided by a half height wall. As the kitchen space was quite small and the dining space rarely used, we came up with the idea of knocking down the dividing wall, creating an open plan space.
Design: We supplied a Leicht kitchen with the door range Sirius-C in a Sand Grey gloss. The design includes a Bora induction hob with built-in extraction and a full Siemens pack. The worktops are Calacatta Gold from Silestone. The design also features a breakfast bar and backsplash in an antique oak finish.